Khuyến nghị lắp đặt bơm trục vít cho hệ thống bùn loãng
Bơm trục vít là loại bơm có ưu điểm xử lý tốt chất lỏng chứa tạp chất, bùn, dung dịch có độ nhớt cao. Tuy nhiên, cần lưu ý:
- Bơm trục vít không có khả năng tự mồi tốt, do đó chất lỏng cần tự chảy vào đầu hút.
- Ống hút chỉ nên có một khúc cua thẳng xuống bể. Nếu đường ống có nhiều khúc cua rích rắc, bơm sẽ khó hút hoặc hoạt động kém hiệu quả.

Đánh giá bản vẽ hiện tại
Qua xem xét sơ đồ lắp đặt, chúng tôi nhận thấy:
- Đường ống hút hiện có quá nhiều khúc cua, làm tăng tổn thất áp suất.
- Với thiết kế này, chúng tôi không thể đảm bảo bơm sẽ hút được, bởi thực tế chưa có hệ thống bơm trục vít nào vận hành hiệu quả khi đường ống có nhiều khúc cua như vậy.
- Thử nghiệm tại nhà máy trước đây cũng cho thấy: bơm trục vít chỉ hoạt động ổn định khi ống hút có một khúc cua đơn giản xuống bể chứa.
Video trực tiếp bơm trục vít
Khuyến nghị lắp đặt
Để đảm bảo hiệu suất và tuổi thọ thiết bị, chúng tôi đề xuất:
- Xoay đặt bơm theo phương ngang, để miệng hút của bơm kết nối trực tiếp với ống hút tại miệng bể.
- Giảm thiểu tối đa các khúc cua trên đường ống, ưu tiên thiết kế đường hút ngắn nhất và thẳng nhất có thể.
- Tham khảo bố trí trong hình minh họa do chúng tôi gửi kèm.
Với cách lắp đặt này, bơm trục vít sẽ vận hành hiệu quả, đảm bảo khả năng hút bùn loãng từ hố sâu như yêu cầu kỹ thuật.
Những lưu ý khi sử dụng cho bơm trục vít
Kết luận
Công ty TNHH Vimex cam kết cung cấp giải pháp tối ưu cho hệ thống bơm trục vít, đảm bảo:
- Hiệu suất vận hành cao.
- Giảm thiểu sự cố khi hút bùn loãng.
- Tăng tuổi thọ thiết bị và giảm chi phí bảo trì.
Trân trọng cảm ơn Quý Công ty đã tin tưởng. Chúng tôi rất mong nhận được phản hồi để cùng phối hợp triển khai phương án tối ưu nhất.
Kính gửi : CÔNG TY CP KỸ THUẬT CƠ ĐIỆN MÔI TRƯỜNG VIỆT NAM
Công Ty TNHH Vimex có nhận được yêu cầu mua bơm trục vít với thông số như sau:
Q=2 m3/h áp 4bar; hút từ hố sâu 4m; Q=5m3/h áp 4bar ; Hút hố sâu 4m;
Chất lỏng là bùn loảng, tỷ lệ bùn 3-5% còn lại nước.
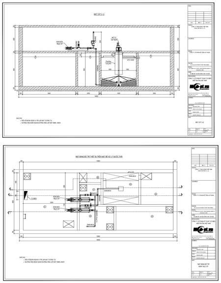
Chúng tôi có nhận được bản vẽ sơ đồ lắp máy của Quý vị. Chúng tôi xin đưa ra khuyến nghị sau:

Bơm trục vít thiết kế để chất lỏng tự chảy vào đầu hút, do vậy khả năng hút cũng như tự mồi của bơm trục vít rất kém. Ống hút chỉ 1 góc cua là xuống bể không lắp ống hút chạy lòng vòng. Vậy nên cần giảm thiểu tối các góc cua và giảm chiều dài đường ống hút sao cho ngắn nhất có thể để bơm hoạt động hiệu quả.
Theo như bản vẽ hiện tại, chúng tôi thấy thiết kế hiện tại đang có quá nhiều khúc cua rích rắc.
Vậy nên nếu máy bố trí theo bản vẽ như vậy chúng tôi không chắc chắn máy sẽ hút được. Vì thực tế chưa có một hệ thống đường ống nào bơm trục vít lại có nhiều khúc cua tới vậy.
Chúng tôi đã yêu cầu nhà máy test bơm trục vít với yêu cầu hút sâu, nhưng đường ống test là có 1 khúc cua xuống bể.

Vì vậy chúng tôi đề nghị xoay đặt bơm ngang để miệng hút của bơm bắt trực tiếp vào ống hút ngay miệng bể, tạo ít góc cua nhất và đường hút ngắn nhất có thể (tham khảo hình ảnh). Như vậy bơm sẽ hút hiệu quả nhất.


Trân trọng cảm ơn!